您好!欢迎访问邯郸市泽皓紧固件制造有限公司官方网站!
专注紧固件制造10载以上
专业高强度紧固件,钢结构配套紧固件,建筑配件生产厂家
联系方式
17331960444
0310-6666067
您当前的位置: 首页>>新闻资讯

新闻资讯

即学即用!一次搞懂悬挑脚手架塔设方法

即学即用!一次搞懂悬挑脚手架塔设方法

目前高层建筑越来越多,建筑外脚手架成为施工中不可或缺的一部分。悬挑式外挑脚手架,它以构造简单,操作方便,减少钢管的投入量、节约人工费等优点,赢得了广大施工企业的青...
悬挑梁拉杆厂家介绍悬挑架材料的加工制作要求

悬挑梁拉杆厂家介绍悬挑架材料的加工制作要求

悬挑梁拉杆 厂家介绍悬挑架材料的加工制作要求是什么? 主要材料、零件、成品、标准件等悬挑件的加工均通过验收。 钢材料的品种、规格、性能等,均应符合国家标准和设计要求。检...
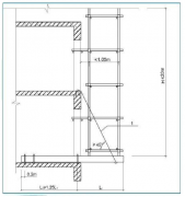
悬挑梁斜拉杆供应商介绍悬挑梁的构造

悬挑梁斜拉杆供应商介绍悬挑梁的构造

建筑物设计、施工乃至加固领域中,经常可遇到 悬挑梁 结构。因为悬挑梁在整个结构体系中的特殊性,所以一旦出现质量问题,将对整幢建筑物构成极大的安全隐患。悬挑结构常常处...
悬挑脚手架悬拉钢丝绳有什么要求?

悬挑脚手架悬拉钢丝绳有什么要求?

若采用间隔设置,建议脚手架搭设施工方案应通过设计及审批确定之。 1、该规范第6.10.4 条:每个型钢悬挑梁外端宜设置钢丝绳或钢拉杆与上一层建筑结构斜拉结。 钢丝绳 、钢拉杆不...
悬挑梁工字钢有哪些好处

悬挑梁工字钢有哪些好处

近几年,新式工字钢悬挑梁在我们的日常生活中应用越来越广泛,传统工字钢悬挑梁一直采用简单粗放式的安装与拼接,悬挑材料重量大,安装过程中劳动强度大,危险性大,搬运材料...