行业资讯
即学即用!一次搞懂悬挑脚手架塔设方法
目前高层建筑越来越多,建筑外脚手架成为施工中不可或缺的一部分。悬挑式外挑脚手架,它以构造简单,操作方便,减少钢管的投入量、节约人工费等优点,赢得了广大施工企业的青睐,且建筑物越高越经济。
悬挑脚手架介绍
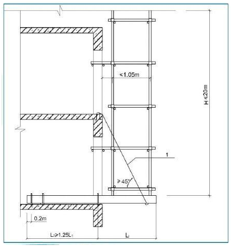
悬挑式脚手架架体可用扣件式钢管脚手架、碗扣式钢管脚手架、门式脚手架搭设、双排脚手架。架体高度可依据施工要求、结构承载力和塔吊的提升能力确定,最 高可搭设至12步架,约20m高,可同时进行2~3层施工。悬挑式脚手架的支撑结构形式。
(悬挑脚手架挑梁结构及锚固)

悬挑式脚手架塔设要点
外防护脚手架安全防护

工字钢设置
工字钢间距均匀,内伸长度统- - ,预埋拉环埋设对齐,上有钢管定位措施,下有钢丝绳定位措施,并要全部刷漆。

槽钢截面加强

设置预埋件
在浇筑悬挑层下层钢筋混凝土梁、板时,需预埋卸载方钢预埋件,预埋件必须在悬挑钢梁正下方
在浇筑悬挑层钢筋混凝土梁、板时,预埋悬挑钢梁锚环
1)锚固位置设置在楼板上时,楼板的厚度不宜小于120mm
2)采用U型锚固螺栓锚固,锚固螺栓在板内加强钢筋直径18mm
3)在浇筑悬挑层上方钢筋混凝土梁、板时,预埋钢丝绳预埋件。

悬挑梁构造示意图

悬挑梁安装
1、在地面将斜撑限位角钢与悬挑钢梁焊接,不少于6mm焊缝(满焊)
2、悬挑端应按梁长起拱1%。囚悬挑板不得作为支点,悬挑梁板强度末达到100%时, 需在悬挑梁板底部搭设支撑架用来加固悬挑梁板。在工字钢上立杆位置焊接25mm短钢筋,钢筋长150mm,使脚于架立杆插入竖向钢筋内部,保证架子根部的稳定性。

3、悬挑钢梁放入预留墙洞内后必须用木楔子楔实、楔紧,保证悬挑钢梁牢固,不晃动。总挑工字钢安装完成后,在悬挑钢梁上铺设临时施工脚于板和挡脚板。铺设宽度不得小于800mm,不得有悬挑板、探头板,脚于板的材质必须不符合本方案的相关规定。
安装工字钢之前,在地面上斜撑限位角钢与工字钢先进行焊接,焊缝不少于6mm。

杆件塔设
确保立杆垂直,大横杆平直,小横杆外伸长度基本统一。大角部位使用定型化钢架。
4.外楼梯间挑梁构造做法
方案一: 在楼梯间设置一道钢梁,钢梁两侧锚固在现浇梁或墙.上,挑梁锚固段与之螺栓连接或焊接连接。
方案二:在楼梯外侧(墙)预留铁件,焊接型钢三脚架。
5.施工电梯位置悬挑构造做法
施工电梯安装位置悬挑架必须单独搭设,水平杆与相邻挑架水平杆搭接连接, 以便施工电梯安装时,脚手架的拆卸。安装施工电梯时断口处必须设置横向斜撑。